The Grandeur series

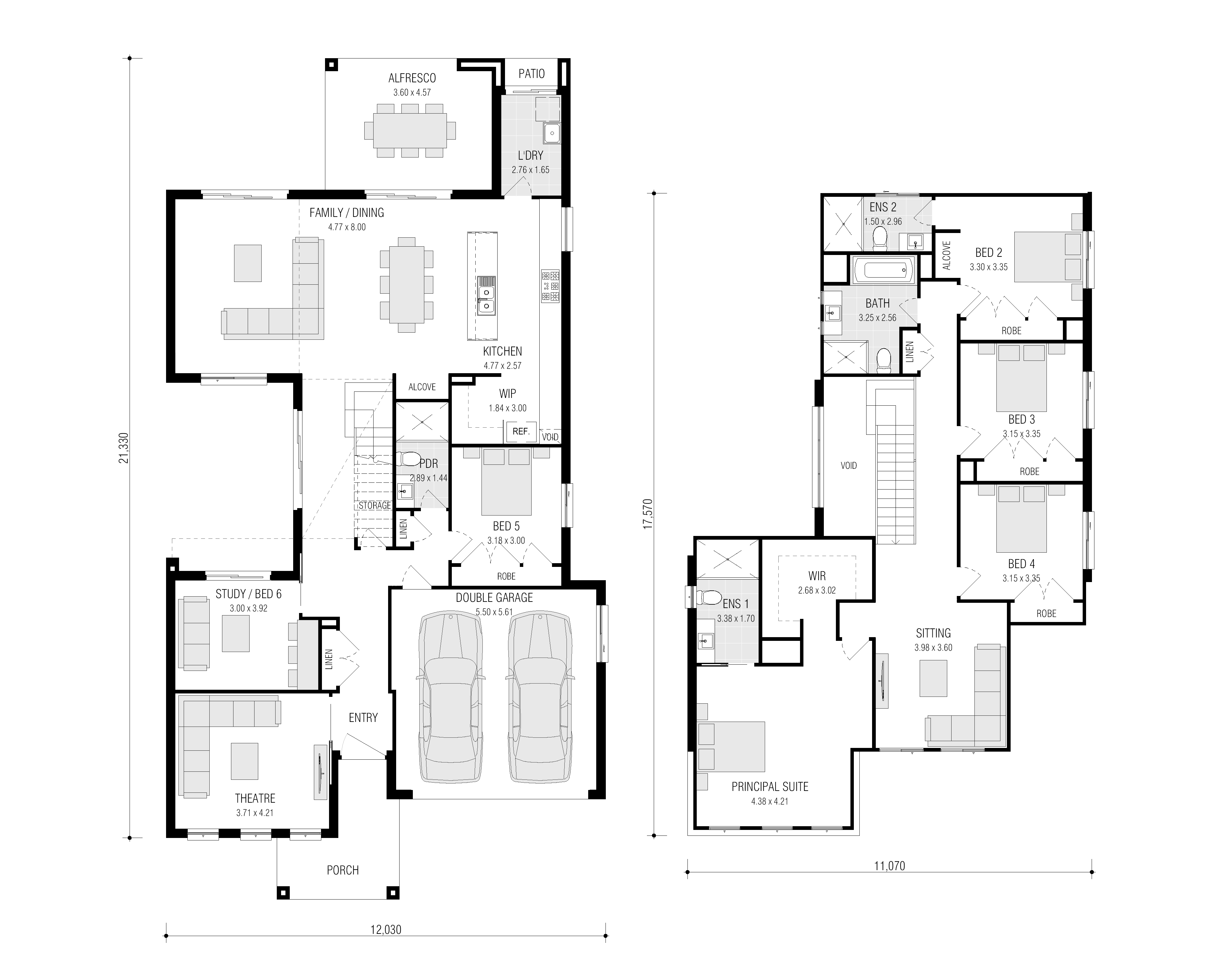
On Display at Oran Park - This impressive two-storey home is designed for large families and modern living. Featuring six generous bedrooms and multiple living zones, it offers plenty of space for everyone to unwind or come together.

GET THE LOOK


Pinnacle

Pinnacle

BROWSE THE LINEUP

FLOOR PLANS


Grandeur 37.4
6
4
2

347.38 sqm

Double Storey

12.03m Wide

21.33m Long

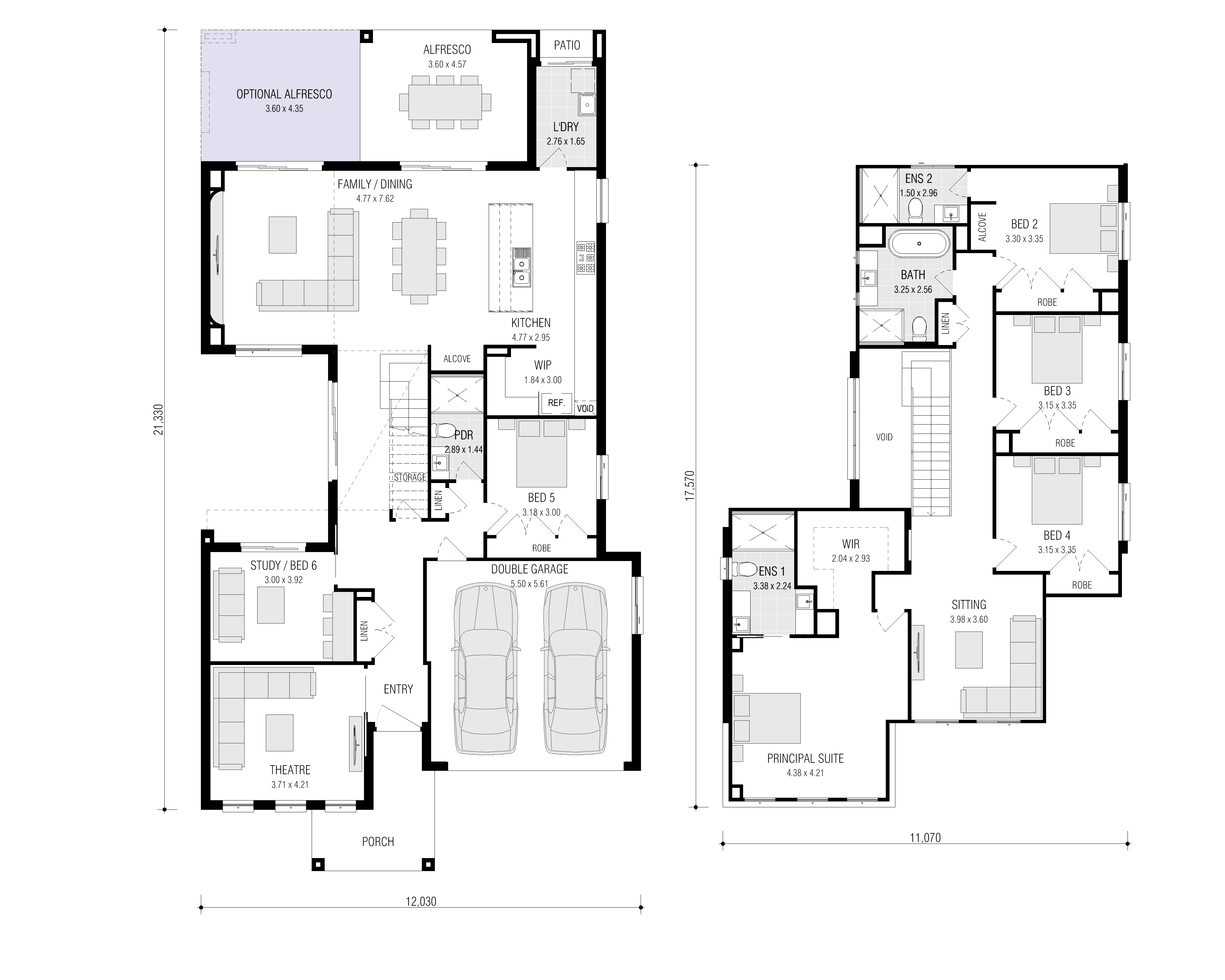
Grandeur 37.4 DISTINCT
6
4
2

347.38 sqm

Double Storey

12.03m Wide

21.33m Long

SEE IT NOW

ON DISPLAY


VIRTUAL TOURS


No virtual tours are available at this time.