The Sorento series

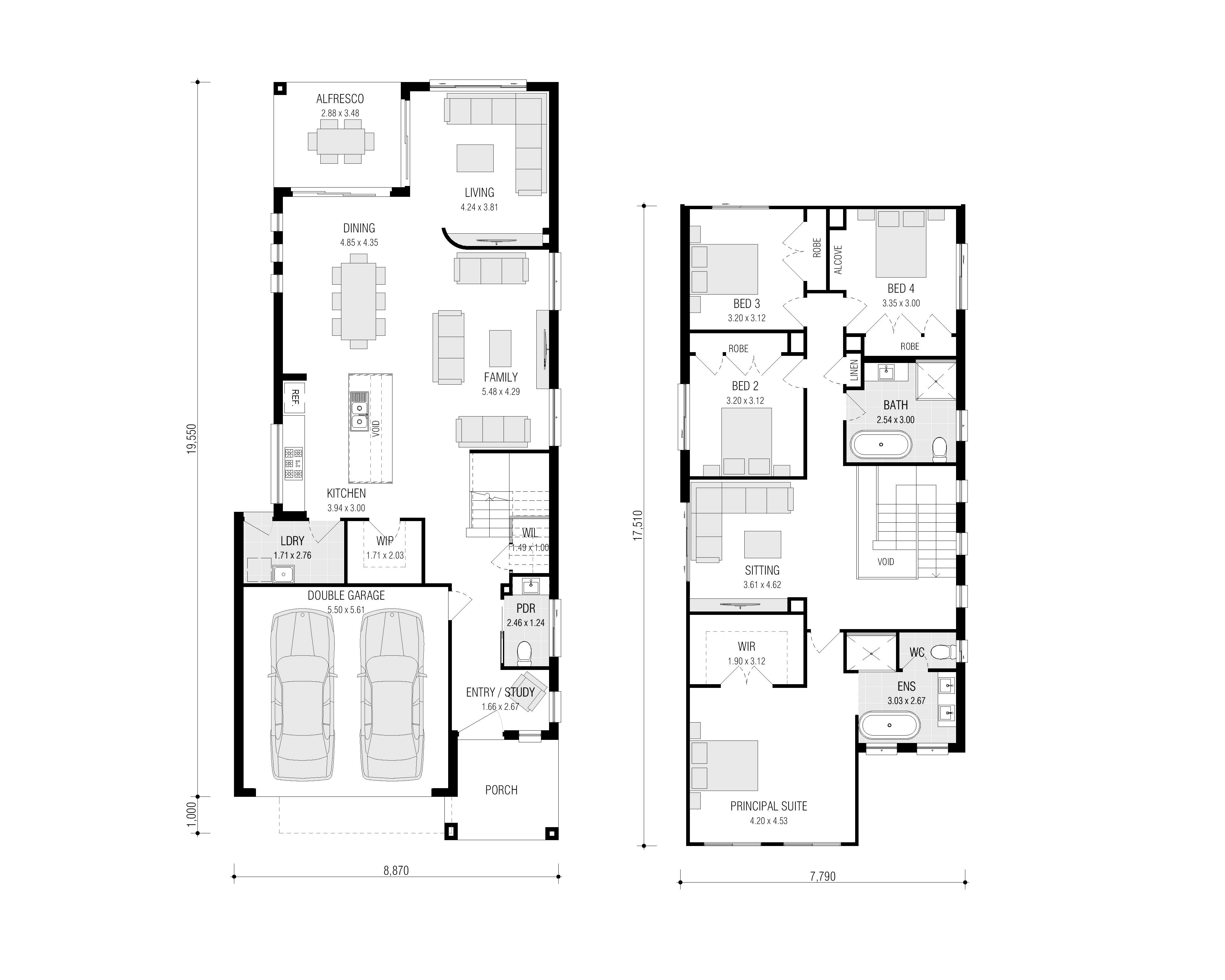
The Sorento is the perfect house design for today’s blocks, fitting comfortably on narrow blocks. With a smart modern design consisting of four big bedrooms, three living areas plus a study this extraordinary two-storey home offers plenty of options for entertaining friends and family.

GET THE LOOK


Apollo

Apollo

Classic

Classic

Cubix

Cubix

Hamlet

Hamlet

Newstead

Newstead

Nexus

Nexus

Nexus MKI

Nexus MKI

Oxley Brick

Oxley Brick

BROWSE THE LINEUP

FLOOR PLANS


Sorento 29.6
4
3
2

275.42 sqm

Double Storey

8.51m Wide

20.31m Long

Sorento 29.6 MKII
5
4
2

275.42 sqm

Double Storey

8.51m Wide

20.31m Long

Sorento 29.6 MKIII
4
3
2

275.42 sqm

Double Storey

8.51m Wide

20.31m Long

Sorento 29.6 MKIV
4
3
2

275.42 sqm

Double Storey

8.51m Wide

20.31m Long

Sorento 29.8
5
4
2

277.04 sqm

Double Storey

8.51m Wide

20.79m Long

Sorento 30.4
5
3
2

282.61 sqm

Double Storey

8.51m Wide

20.67m Long

Sorento 30.4 MKII
6
3
2

282.61 sqm

Double Storey

8.51m Wide

20.67m Long

Sorento 31.0
4
3
2

288.08 sqm

Double Storey

8.87m Wide

20.31m Long

Sorento 31.4
4
3
2

291.82 sqm

Double Storey

8.87m Wide

20.55m Long

Sorento 31.4 DISTINCT
4
3
2

291.82 sqm

Double Storey

8.87m Wide

20.55m Long

SEE IT NOW

ON DISPLAY


VIRTUAL TOURS


No virtual tours are available at this time.